TIQUE HOME

  • 5532733485
  • tique-home.easybroker.com

Nave Industrial 650 m2 Poligono Buenavista, Santa Rosa Jauregui, Querétaro

Buenavista, Querétaro

$11,000,000 For Sale

$65,000 For Rent

  • 4 Parking spaces
  • 650 m² total space
  • 1,020 m² Lot Size
  • New Age
  • 4.5 Expenses
  • EB-TV3881 ID
Description

Por entregar
BODEGA INDUSTRIAL en Venta – ¡Ubicación Estratégica y Alta Infraestructura!
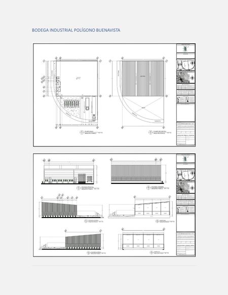
TERRENO DE 1,020.058 m2
*Uso de suelo Industria ligera y Pesada*
Construcción de 650 m2
Lote 14, manzana 7
Características Principales
• Área de Recepción: Espacio amplio para atención a clientes o visitantes.
• Oficinas: 2 oficinas privadas, ideales para actividades administrativas.
• Baños: 2 ½ baños distribuidos en el inmueble.
• Estructura para Mezzanine: Permite expansión del espacio para almacenamiento o trabajo adicional.
• Andenes: 2 andenes de carga y descarga, optimizando las operaciones logísticas.
• Estacionamiento: 4 cajones de estacionamiento disponibles.
Equipamiento y Condiciones
• Accesibilidad: Espacios diseñados para personas con movilidad reducida, rampas y accesos amplios.
• Iluminación y Ventilación: Iluminación natural y ventilación adecuada en todo el inmueble.
Ubicación y Entorno
• Cercanías: A solo 3 minutos de la Carretera 57 y del Parque Industrial Querétaro, y a tan solo 10 minutos de la zona norte de la ciudad de Querétaro, lo que facilita el acceso a las principales rutas comerciales y de transporte de la región.
• Zona Comercial/Industrial: Ubicado en una zona estratégica con alta demanda para actividades industriales.
• Accesos Principales: Conectividad directa con avenidas principales y rutas de acceso rápido.
Energía y Suministros: Instalación de servicios básicos con capacidad suficiente para diversas necesidades.
Ubicación Premium: Acceso inmediato a vías principales, parques industriales y centros logísticos.
Infraestructura de Primera:
Ideal para naves industriales, centros de distribución o desarrollo logístico.
Listos para construir, con toda la documentación en regla.
Cuota de mantenimiento $4.5 x m2
Sistema de Protección contra incendios
Planta de tratamiento de aguas residuales
Seguridad 24/7
Instalación subterránea
Carriles de aceleración, vialidades de 4 carriles
Telefonía y comunicación fibra óptica
Red de canales pluviales
¡Agenda tu visita hoy!

TIQUE HOME

  • 5532733485
  • tique-home.easybroker.com

TIQUE HOME

  • 5532733485
  • tique-home.easybroker.com