TIQUE HOME

  • 5532733485
  • tique-home.easybroker.com

Oficina sobre periférico Oriente

Benito Juárez Ote, Mérida

$7,000,000 For Sale

  • 1 Bathrooms
  • 2 Half Bathrooms
  • 9 Parking spaces
  • 312 m² total space
  • 639 m² Lot Size
  • EB-SM1273 ID
Description

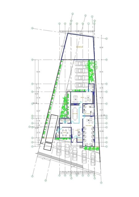
En Venta Oficina de 312 m2 ubicada en la colonia Benito Juárez Oriente con 21.20 metros de Frente sobre Periferico Oriente.

La colonia Benito Juárez está situada en una zona muy bien ubicada dentro de la ciudad, lo que te permitirá acceder fácilmente a otras zonas clave como el centro de la ciudad, zonas comerciales, financieras, o residenciales; está bien conectada por varias vías principales, como la Avenida 60, que facilita el acceso desde diferentes partes de la ciudad. La colonia es de segura, y tiene una proyección de crecimiento que puede ser muy beneficiosa a largo plazo.

Terreno: 639 m2 (Frente 21.20 m sobre Periferico)

Construcción Total: 312 m2 (Oficinas + Bodega)
- Oficina: 212 m2
- Bodega: 100 m2

La Oficina Cuenta con:

Recepción
1 Privado de Dirección ( Con baño completo)
1 Privado Gerencia ( 4 Personas)
1 Area de Trabajo (12 Personas)
1 Sala de Junta ( 8 Personas )
2 Baños de visitas (Hombre y Mujer)
Cocina
Bodega
Estacionamiento de Visitas (5 Autos)
Estacionamientos privados (4 Autos)

*Precio sujeto a cambio sin previo aviso

Amenities
  • Street parking

TIQUE HOME

  • 5532733485
  • tique-home.easybroker.com

TIQUE HOME

  • 5532733485
  • tique-home.easybroker.com