TIQUE HOME

  • 5532733485
  • tique-home.easybroker.com

PREVENTA DEPARTAMENTOS EVER, ZONA REAL, Depto 502-2D

Jardines Del Valle, Zapopan

$3,940,647 For Sale

  • 1 Bedrooms
  • 1 Bathrooms
  • 1 Parking spaces
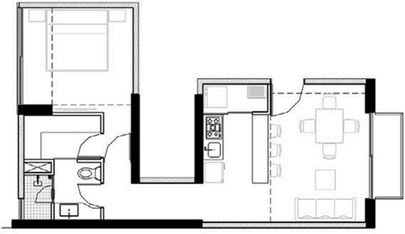
  • 74.89 m² total space
  • Under Construction Age
  • EB-IZ2929 ID
Description

Ever se encuentra en el punto con mayor plusvalía y estilo de vida del mejor municipio de toda la Zona Metropolitana de Guadalajara.
Al estar dentro de la Zona Real, cuenta con todo tipo de servicios, escuelas, hospitales, centros de entretenimiento y comercio a pocos minutos de distancia; todo esto, sin perder la seguridad y privacidad que permiten llevar una vida tranquila.

Departamentos de 57 a 79 m2, con una o dos recámaras, sala, comedor, baños, cocina, cuarto de lavado y balcón.

Todos los departamentos están equipados y cuentan con terminados arquitectónicos que crean un ambiente acogedor y atractivo.
Piso de porcelanato
Cocina integral de melamina con cubierta de granito Clósets de melamina
Canceles de cristal templando en baño completo
Muros de baño completo forrado de azulejos Regaderas de baño tipo ducha
Iluminación led tipo spot
Muros acabados en yeso

Un espacio que ha sido diseñado para acompañar tu estilo de vida y convertirse en una extensión de la comodidad que la Zona Real puede ofrecer a tu día a día.
-Elevador de autos
-Salón de usos múltiples con cocina
-Terraza abierta
-Terraza techada
-Salón de juegos Gimnasio Bodegas

Invertir en la Zona Real, en un proyecto sólido y con excelente planeación, te permitirá acceder a una plusvalía anual estimada del 15 durante los primeros tres años.

Amenities
  • Cistern
  • Covered parking
  • Street parking
  • Storge Unit
  • Fitted Kitchen
  • Elevator
  • 24 Hour Security
  • Gym
  • Multipurpose room

TIQUE HOME

  • 5532733485
  • tique-home.easybroker.com

TIQUE HOME

  • 5532733485
  • tique-home.easybroker.com