TIQUE HOME

  • 5532733485
  • tique-home.easybroker.com

RENTA DE LOCAL COMERCIAL ZONA INDUSTRIAL SAN PEDRO

San Pedro, San Pedro Garza García

$300 per m² For Rent

  • 6 Parking spaces
  • 333 m² total space
  • Under Construction Age
  • Planta Baja Floor
  • EB-OX5446 ID
Description

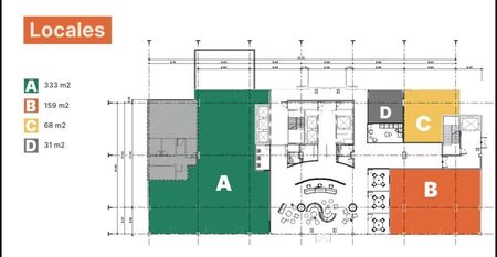
Renta de Locales Comerciales en Obra negra, son 4 opciones de diferente medida,
LOCAL A 333 m2,
LOCAL B 159 m2, ideal para sector salud
LOCAL C 68 m2,
LOCAL D 31 m2
ubicados en la planta baja de la Torre ICONN, en BLVD Gustavo Diaz Ordaz, sector industrial.
ideal para Estancia Infantil, Sector Salud, Mensajería, Distribución, P.O.box

Amenities
  • 24 Hour Security

TIQUE HOME

  • 5532733485
  • tique-home.easybroker.com

TIQUE HOME

  • 5532733485
  • tique-home.easybroker.com