5532733485

Departamentos en Venta a estrenar en Benito Juárez.

Portales Oriente, Benito Juárez, Ciudad de México

  • Departamento
  • 2 recámaras
  • 2 baños
  • 69,362 m² de construcción
  • $3,650,620 En Venta

Descripción

Portales Oriente, Benito Juárez, CDMX
Av. Principales: Calzada de Tlalpan y Av. Presidente Plutarco Elías Calles.
Transporte Publico: Metro Portales y Ermita
Servicios Cercanos: Restaurantes, Salones, Museos, Escuelas, Tiendas de autoservicio, Áreas verdes (Parque Masayoshi Ohira) y Plaza comercial Patio Universidad.
Diferentes precios y caracteristicas:
69.62 m2 | $3,600,620
2 Recamaras
2 Baños
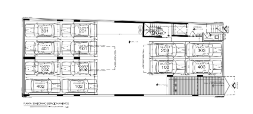
1 Estacionamientos
Cocina Equipada
Elevador
Área de Lavado
LOBBY
ELEVADOR
ROOF GARDEN
TERRAZA
VIGILANCIA 24 HORAS

71.46 m2 | $3,730,190
2 Recamaras
2 Baños
Cocina Equipada
Elevador
Área de Lavado
LOBBY
ELEVADOR
ROOF GARDEN
TERRAZA
VIGILANCIA 24 HORAS

69.16 m2 | $3,680,900
2 Recamaras
2 Baños
1 Estacionamientos
Cocina Equipada
Elevador
Área de Lavado
LOBBY
ELEVADOR
ROOF GARDEN
TERRAZA
VIGILANCIA 24 HORAS

ENTREGA JUNIO 2026

Opciones de financiamiento

  • Créditos bancariosMortgage
  • FOVISSSTE
  • INFONAVIT / COFINAVIT
  • ISSFAM / Banjercito
  • PEMEX

Características

Exterior
  • Roof garden
  • Terraza
General
  • Circuito cerrado
  • Cocina integral
  • Cuarto de servicio
  • Elevador
  • Portero
  • Seguridad 24 horas

Detalles

ID:EB-UQ1338
Tipo:Departamento
Precio de venta: $3,650,620
Antigüedad:En construcción
Recámaras:2
Baños:2
Estacionamientos:1
Construcción:69,362 m²