5532733485

Local comercial en Gasolinera

Lagunitas, Los Cabos, Baja California Sur

  • Local comercial
  • 222.72 m² de terreno
  • Consulte precio

Descripción

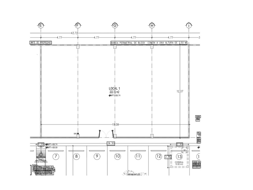
Se construye Local Comercial a tus necesidades en gasolinera. Disponible para renta.

Ideal para farmacia, refaccionaría, venta de accesorios automotrices, tintorería, reparación celular, etc…

Local de 228.38 m2 Con 19.16 metros de frente y 11.92 de profundidad.

Uso de suelo: mixto intenso

Servicios: electricidad, agua, drenaje, telefonía, pavimento, alumbrado exterior, afluencia 24 horas.

**Precio no incluye IVA

Características

Exterior
  • Cisterna
  • Facilidad para estacionarse
General
  • Accesibilidad para adultos mayores
  • Accesibilidad para personas con discapacidad
  • Seguridad 24 horas

Detalles

ID:EB-MQ5786
Tipo:Local comercial
Antigüedad:A estrenar
Terreno:222.72 m²